兵庫県姫路市について、姫路城や姫路駅あたりの城下町を描いた、明治時代の古地図を見てみました。
古地図は明治32年に発行された『姫路明細地図』です。昔の姫路城を撮った写真もありましたので、あわせて紹介します。
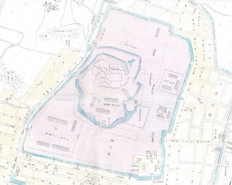
姫路の古地図(明治時代の姫路城周辺)

明治時代の古地図を見てみると、姫路城の周りの堀が、現在では埋め立てられている部分も含めて、青色で確認できます。
姫路城の周りにある、現在の三ノ丸広場には、歩兵連隊の建物があり、大手前広場が練兵場になっています。
現在、公園になっている姫路城の周りは、その大部分が軍隊の施設として使われていました。
姫路の古地図(明治時代の城下町と姫路駅)

当時、姫路で賑わう場所について『現代語訳 沿革考証 姫路名勝誌』に、このような記述がありました。
最も賑わっているのは福中町通東西10丁の間であろうが、これこそ200年前に渡し守を呼ぶ声で水鳥を驚かせた、松並河原の国府渡の変貌した姿である。
『現代語訳 沿革考証 姫路名勝誌』p153より
1丁は距離の単位で、約109mなので、当時は福中町通りの東西1090mほどが、賑わっていたということです。
この通りは現在では、およそ西二階町通りから、二階町通りぐらいで、東西に約600mのまっすぐな道筋が、商店街になっています。
また、駅周辺の場所について、このような記述がありました。
市街の南端にある山鉄停車場は、今日では汽車の往来が頻繁で、乗降客で混雑するさまは機織りのようであるが、近年までは姥ヶ淵・月見清水などといって、名前を聞いただけでも寂しげな村はずれであった。
『現代語訳 沿革考証 姫路名勝誌』p153より
鉄道ができる頃まで、姫路で栄えていたのは、福中町を中心とした場所なので、古地図のなかでも姫路駅は、外堀の外側に描かれています。
姫路城を南から見た昔の写真

こちらが明治時代の姫路城です。現在でいうと、家老屋敷公園のあたりから撮った景色でしょうか。
南東方向から見た、これより精細な写真は、国立国会図書館デジタルコレクションにありました。
古地図を見ながら城下町を散策
古地図をじっくり見てみると、現在とはまた違った、姫路の街が見えてきます。
明治時代の姫路ガイド『現代語訳 沿革考証 姫路名勝誌』には、大判の古地図が、付録で付いています。
古地図を片手に、明治時代のガイドブックを見ながら、街中を散策してみるのも、面白いかもしれません。



























